Lakeview Apartment with Expansive Balcony and Modern Kitchen

Price Upon Request
305/34 Victory Parade, Toronto, NSW, 2283, Australia

Property Highlights

  • Lake-facing balcony with heaters
  • Chef's kitchen with stone waterfall island
  • Open-plan living and dining area
  • Master suite with ensuite and walk-through robe
  • Two secure basement car spaces
  • Opposite foreshore parkland and near cafes

Overview

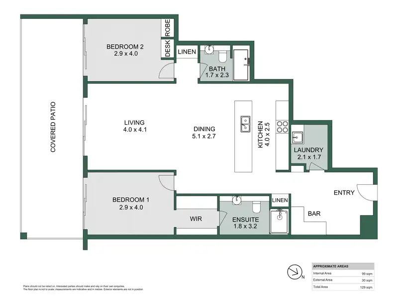
Lake-facing views, a scenic balcony, and a setting right opposite Toronto's foreshore parkland make this apartment a showstopper. Designed for easy flow between cooking, dining, relaxing, and entertaining, its open-plan design is anchored by a chef's kitchen with stone waterfall benchtops, premium appliances, and a custom bar with room for a wine fridge. Two bedrooms, both opening onto the wide balcony, create a holiday-at-home atmosphere, with the master enjoying its own ensuite and walk-through robe. Ducted air conditioning keeps every season comfortable, while two secure basement car parks, a full laundry, and lock-up storage tick the boxes for practicality. With the foreshore on your doorstep, Toronto's main street and dining precinct just 30 metres away, and a community buzzing with cafés, restaurants, and lakeside walks, this apartment pairs everyday ease with a lifestyle most only dream of. - Expansive entertainer's balcony with sweeping views to the lake, and heaters on both sides - Chef's kitchen with 40mm stone waterfall island, mirrored splash, and adjoining bar zone - Free-flowing living/dining area designed for effortless living and entertaining - Both bedrooms open directly to the balcony, blurring the indoor/outdoor line - Master suite with walk-through robe and private ensuite - Main bathroom includes a full bath and premium finishes - Two secure basement car spaces plus lock-up storage and lift access - Secure boutique development opposite foreshore parkland - 30m to Toronto's cafés, restaurants, shops, iconic pub and waterfront walks - Quick public transport links with bus stops nearby and Fassifern station 4km away We have obtained all information used in the preparation of this document from third party sources however, we cannot guarantee the accuracy or currency of this information. Prospective purchasers and their advisors are advised to carry out and rely on their own enquiries and investigations in relation to the information in this document and the property it concerns.
Show More Show Less

Property Features

305/34 Victory Parade, Toronto, NSW, 2283, Australia offers the following features:

Bedrooms: 2
Bathrooms: 2 Full
Property Type: residential
Status: Active
Reference ID: 222P607344

Map