Historic Healdsburg Property with Approved Plans for New Build

USD $950,000
199 West Matheson Street, Healdsburg, California, 95448, USA

Property Highlights

  • Nearly one-acre lot with historic walnut trees
  • Approved plans for 3-bedroom, 4-bath house
  • New 4-bedroom septic system installed
  • Public water and natural gas available
  • Detached 2-car garage with exercise room and ADU
  • Positioned outside city limits with rental potential

Overview

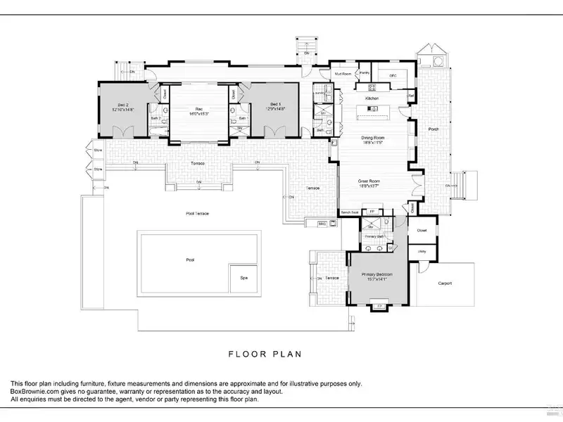
Set on nearly an acre just outside Healdsburg city limits, this westside property offers an exceptional opportunity to rebuild with existing approved plans, remodel, or design new while preserving a piece of Healdsburg's history. Once part of the original Hooten Ranch, one of Healdsburg's earliest walnut farms, the property retains its heritage character with four 100+ year-old walnut trees (two black and two English) and a few beautiful oak trees that enhance the setting. A brand new 4-bedroom septic system, public water, and natural gas are already in place. Approved permitted plans to rebuild and thoughtful site improvements make this a seamless starting point for those looking to create their ideal Wine Country retreat while honoring the property's roots. The approved plans include a 3-bedroom, 4-bathroom, 2,112 sq. ft. main house, a detached 2-car garage with a conditioned exercise room, ADU and deck above, and a new driveway along W. Matheson Street, strategically positioned to maximize the most positive aspects of the lot. Located outside city limits in Sonoma County jurisdiction, the property may also offer the possibility of short-term or vacation rental use, subject to county permitting and regulations.
Show More Show Less

Property Features

199 West Matheson Street, Healdsburg, California, 95448, USA offers the following features:

Bedrooms: 3
Bathrooms: 1 Full
Living Area: 1260sf
Property Type: Residential
Status: Pending
Reference ID: 325091020

What's Nearby

Local businesses near 199 West Matheson Street, Healdsburg, California, 95448, USA:

School: < 1 mile
Public Transportation: < 1 mile
Gym: < 1 mile
Grocery/Shopping Center: < 1 mile
Police Station: < 1 mile
Hospital: 1.1 miles

Map