Luxurious Renovated Apartment with Two Balconies in Berlin

EUR €5,900,000 (USD $6,870,819) *current conversion
41 Schlüterstraße #38266, Berlin, BE, 10707, Germany

Property Highlights

  • Located on entire 3rd floor
  • Two balconies with prime views
  • Elevator access to the floor
  • Spacious eat-in kitchen with appliances
  • Living room with fireplace
  • Includes library and fitness room

Overview

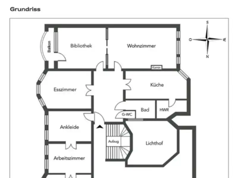
This spacious, renovated apartment in an old building with a total of 8 rooms and 2 bathrooms is located on the 3rd floor (it extends over the entire floor) of a prestigious apartment building in a prime location in Berlin. The beautiful old apartment has two entrances and two balconies. The property was completely modernized in 2020 and presents itself in a luxurious condition. The apartment impresses with its high-quality furnishings and attractive floor plan. The flooring consists of elegant tiles and fine parquet flooring, which creates a warm and cozy atmosphere. There is an elevator in the building, which will take you comfortably to the desired floor. On a generous area of almost 410 m², an outstanding living concept with elements typical of old buildings has been created here, which will delight every lover of old buildings. The large window fronts, coffered doors, stucco decorations on the ceilings and light-flooded rooms create a pleasant ambience and leave nothing to be desired. A spacious eat-in kitchen is equipped with all the necessary appliances and offers plenty of space for cooking and enjoying meals. Other special highlights include the living room with fireplace, a beautiful library and a room currently used as a fitness room. Furthermore, there is a spacious master bathroom, a guest WC, a utility room, two dressing rooms and a cellar, all of which will meet your needs. Anyone who loves luxury, old buildings and the Ku'damm will be immediately enchanted here. Be inspired by this unique property and arrange a viewing today. We look forward to hearing from you.
Show More Show Less

Property Features

41 Schlüterstraße #38266, Berlin, BE, 10707, Germany offers the following features:

Bedrooms: 8
Bathrooms: 3 Full
Living Area: 4413.24sf
Property Type: Condo
Status: Active
Reference ID: 1785022

What's Nearby

Local businesses near 41 Schlüterstraße #38266, Berlin, BE, 10707, Germany:

School: < 1 mile
Hospital: < 1 mile
Grocery/Shopping Center: < 1 mile
Public Transportation: < 1 mile
Gym: < 1 mile
Police Station: < 1 mile

Map